La iglesia San Norberto en Bogotá, arquitectura para la reflexión

La iglesia San Norberto, diseñada por el arquitecto Carlos Campuzano, ganó el primer puesto en la categoría Institucional/Industrial en los premios Cemex de Arquitectura en el 2014.

Artículos destacados

El color como lenguaje y el oficio como punto de partida para diseñar espacios con identidad

Un conjunto de casas hechas para descansar y trabajar rodeados de la naturaleza

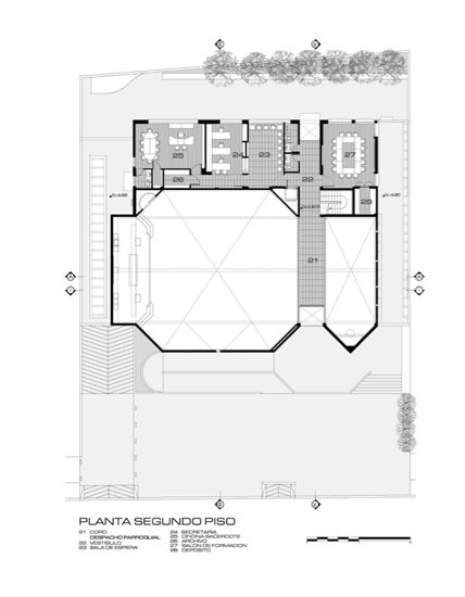
En el barrio La Calleja, en Bogotá, se encuentra la iglesia San Norberto, diseñada por Carlos Campuzano y Asociados Arquitectos y construida por De Valdenebro Ingenieros. El templo, ganador del primer puesto en la categoría Institucional/Industrial en los premios Cemex de Arquitectura, tiene cuatro plantas con áreas de rito y salones de formación, oratorio, despacho parroquial y casa cural.

La iglesia san norberto en bogotá, arquitectura para la reflexión La iglesia san norberto en bogotá, arquitectura para la reflexión

La arquitectura en concreto se destaca por su sobriedad y por un sistema de ventilación natural, donde el aire viaja hacia la cubierta y sale a través de una trampa de ruido revestida de atenuadores acústicos evitando así la dispersión del ruido. En la capilla, donde se aloja un número importante de ocupantes, funciona un sistema de ventilación natural. El aire viaja del piso hacia la cubierta, a una imperceptible velocidad, garantizando adecuadas condiciones de temperatura del espacio.

La iglesia san norberto en bogotá, arquitectura para la reflexión

En el área del rito se diseñaron entradas de aire por fachadas, y  la evacuación del aire caliente a través de trampas acústicas estratégicamente localizadas en la cubierta. Estas controlan la salida del ruido interior y también el ingreso del ruido exterior, dando solución simultánea a dos situaciones enfrentadas como lo son la ventilación natural y el aislamiento acústico.

La iglesia san norberto en bogotá, arquitectura para la reflexión

Diseño responsable

Destinado a recibir un número considerable de feligreses, el proyecto propone un espacio público generoso hacia la ciudad al retroceder el volumen, un acceso a través de una rampa que invita a peregrinar a un recinto interior aislado de la calle que evita interferencias visuales y acústicas.

La iglesia san norberto en bogotá, arquitectura para la reflexión

Cada uno de los espacios ha sido cuidadosamente diseñado en la búsqueda de la generación de condiciones de bienestar utilizando estrategias de ventilación natural, de la protección solar y manejo de luz natural, todo esto relacionado al uso adecuado de la inercia térmica del hormigón, eficiente estructura que genera el espacio.

La iglesia san norberto en bogotá, arquitectura para la reflexión

Una geometría de planos variables en los muros y un techo convexo cumple las funciones de anular la reflexión acústica  y reflejar la luz coloreada por los vitrales realizados por el reconocido artista venezolano Carlos Cruz-Diez. De esta manera, al aprovechar el componente de la luz natural a través del vitral diseñado en el perímetro superior de la capilla y lograr la entrada e iluminación natural al interior, se minimiza el consumo de energía eléctrica durante el día.

La iglesia san norberto en bogotá, arquitectura para la reflexión

Los sótanos donde se localizan los estacionamientos cuentan también con un sistema de movimiento natural de aire, evitando la utilización de equipos mecánicos y su costo de funcionamiento y consumo de energía eléctrica.

La iglesia san norberto en bogotá, arquitectura para la reflexión

Otro componente importante es la utilización de las aguas lluvias como parte del sistema funcional del edificio. Estas se recogen de cubiertas y terrazas para ser usadas en los servicios sanitarios y en el riego de jardines mediante redes de agua independientes de agua potable. La iglesia San Norberto, arquitectura para la reflexión.

 

La iglesia san norberto en bogotá, arquitectura para la reflexión

Comparte este artículo

Otros artículos

La renovación de una casa en España que integra color, clima y paisaje

Respetar la identidad arquitectónica de esta casa, ubicada en España, fue el punto de partida para transformarla: suelos de hormigón blanco, piedra volcánica local y un diseño que dialoga con el paisaje sin imponerse.

El propósito de esta vivienda era ‘vivir dentro de un museo japonés’

Inspirada en la infancia del propietario, en un viaje a Japón y en la búsqueda de calma, Casa Tao, ubicada en Morelia, México, es una vivienda que se abre al cielo y al viento para habitar un mundo interior sin renunciar a la luz exterior.

Reviva las reflexiones más relevantes del Congreso Colombiano de la Construcción 2025

En el congreso anual de Camacol trazó la hoja de ruta del sector, presentó nuevas propuestas de vivienda y debatió sobre economía, tecnología y ciudad. Le contamos los detalles sobre este evento.

Suscríbase a nuestro newsletter

Para recibir todo nuestro contenido