En un terreno de 7.000 metros cuadrados, Andrés Uribe Mesa diseñó y construyó una vivienda pensada en términos de lograr una íntima relación con el medio natural que la rodea. “Cuando me encuentro un paisaje como este, con un bosque nativo enfrentado a un horizonte ilimitado, busco que el exterior entre en la casa”, explica el arquitecto.
Esta relación con el entorno también determinó el aspecto exterior de la construcción, pensada con un criterio de absoluta sencillez para destacarse lo menos posible en el lugar.
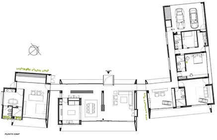
Los tres volúmenes que configuran esta residencia, de 426 metros cuadrados, se levantan 36 centímetros sobre el terreno y aunque la disposición del conjunto es lineal, sigue un trazado sinuoso que le da el aspecto casual de unas cajas dejadas al azar sobre el prado.
Muros de mampostería reforzada con columnas de concreto y cubiertas planas de material termoacústico forman unos pórticos de los que salen, como si fueran cajones de madera, los volúmenes de la cocina y de los baños. Para las fachadas, el arquitecto preparó en el sitio una mezcla de pintura en tono gris acorazado que mimetiza la casa entre el verde y el cielo; sin embargo, las fachadas de los módulos de cocina y baños las revistió con láminas Prodema Prodex, de Hunter Douglas, una superficie de madera natural tratada con productos resistentes a las manchas, la humedad y la decoloración que produce la luz solar.
El interior
Un cubo de madera asomado sobre una plataforma de concreto propone la entrada al volumen central en el punto en el que limita el salón con el comedor, el cual tiene a un costado la cocina, integrable al espacio social mediante un juego de puertas correderas. Entre la sala y el comedor, un muro del que sobresale el montaje de la chimenea –resaltado en gris– proporciona una superficie interior para colgar algunas de las obras de arte de la colección de los propietarios.
En la pared opuesta de la sala, abierta por ambos costados al jardín, tiene lugar un nicho en el que instalaron un armario de comino crespo, reliquia familiar que adaptaron como bar. Finalmente, frente al comedor, un muro suelto enchapado en madera delimita la circulación hacia la alcoba principal y sirve de bodega de vinos.
Dos conectores cerrados de vidrio cruzan la separación que hay entre los volúmenes. Uno de ellos conduce a la alcoba principal, la cual se puede abrir al jardín al correr las puertas deslizantes de piso a techo, como es posible hacerlo en todos los espacios de la casa.
El otro comunica el área social con el ambiente privado, allí está la biblioteca, donde los propietarios cultivan otra de sus pasiones: los libros, que encuentran su lugar en estanterías incorporadas en los muros, entre las cuales se acomoda una chimenea de hierro fundido; además, un gabinete de madera de principios del siglo XX guarda objetos curiosos y antiguos.
Continúa esta ala familiar con un estar que se puede habilitar para huéspedes, una habitación y la zona de ropas y servicios, con alojamiento para el personal asistente, y el garaje.
Andrés Uribe no oculta su admiración por los conceptos arquitectónicos de Mies van der Rohe y es consecuente con esos principios al escoger una gama muy precisa de acabados: fachadas grises, muros interiores blancos, pisos de bambú y paneles deslizantes de vidrio de piso a techo en la mayoría de los espacios. Así mismo, la claridad que se percibe en los espacios durante el día se mantiene en la noche gracias al diseño de iluminación, de High Class, a partir de unidades led adecuadas a las necesidades y usos de cada recinto.
Un diseño extremadamente sencillo requiere un riguroso control de los detalles y de las técnicas de construcción, porque en una arquitectura aparentemente tan elemental no hay manera de esconder errores ni disimular imperfecciones. Por eso, resulta admirable el esfuerzo de crear una obra sutil y diáfana, pensada para que se funda en el paisaje y se vea lo menos posible.











