El 12 de septiembre se supo sobre la muerte de Guillermo Fischer (Chicago, 1957) a sus 66 años, el arquitecto estadounidense que hizo su carrera en Colombia. Estudió en la Universidad de Los Andes e hizo su maestría en la Universidad Nacional de Colombia.
Desde 1985 ejerció como arquitecto y desde la década de 1990 como docente de varias universidades del país, de manera que su legado no está solamente en sus obras construidas, sino en las lecciones que impartió durante años en las facultades.
A propósito de sus obras, algunas de ellas convivirán en la vida diaria de los colombianos durante años. Algunos proyectos icónicos de Bogotá fueron desarrollados por Fischer, como el parque de la calle 60 con carrera séptima (Parque de Los Hippies) o el edificio de ciencias de la Universidad Nacional.
“Últimamente se ha dado mucha importancia a la fachada, y lo que sucede por dentro pasa a segundo plano. Me preocupa más el interior, la fachada resulta de cómo se resuelven los espacios interiores”, decía Guillermo Fischer en una entrevista con la revista AXXIS.
Desde que fundó su estudio, hace más treinta años, ha desarrollado decenas de proyectos de vivienda, institucionales y comerciales. De hecho, es probable que una gran cantidad de personas haya experimentado e interactuado con su trabajo en los restaurantes de Crepes & Waffles y WOK.

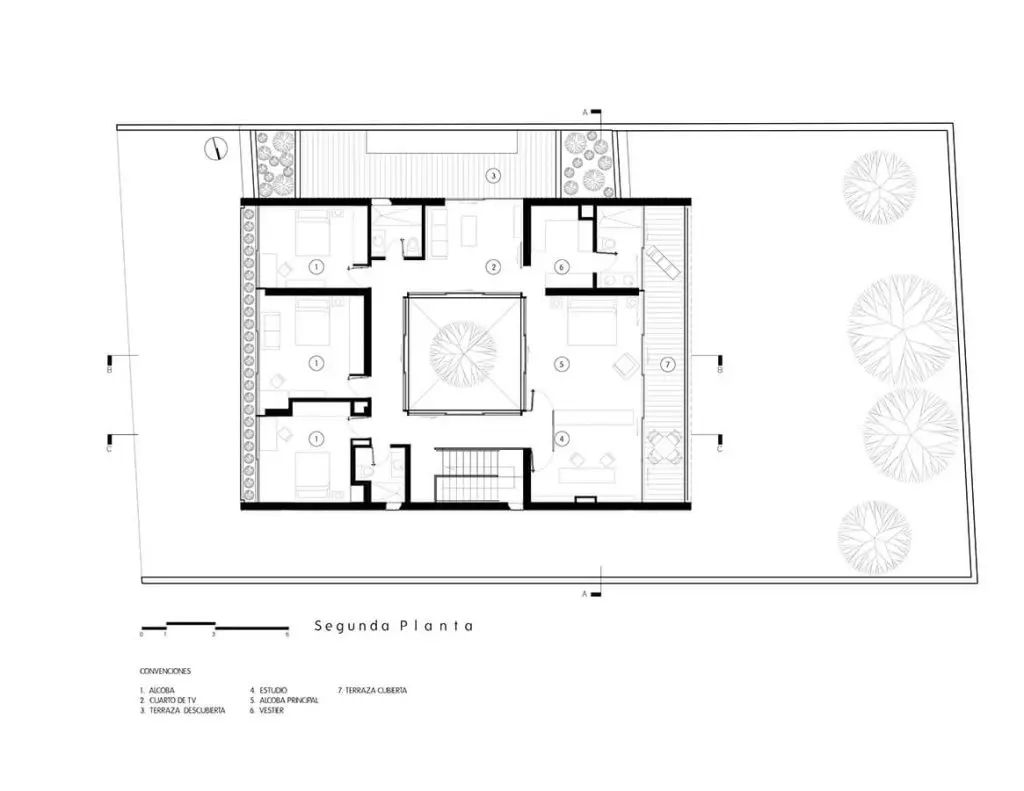
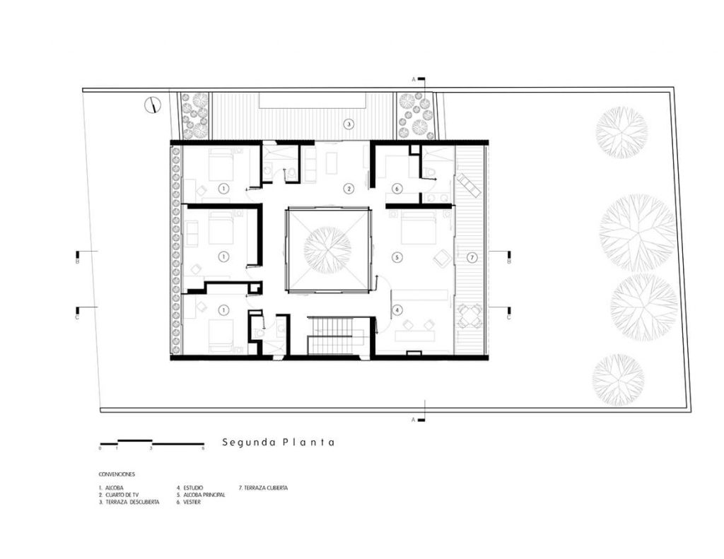
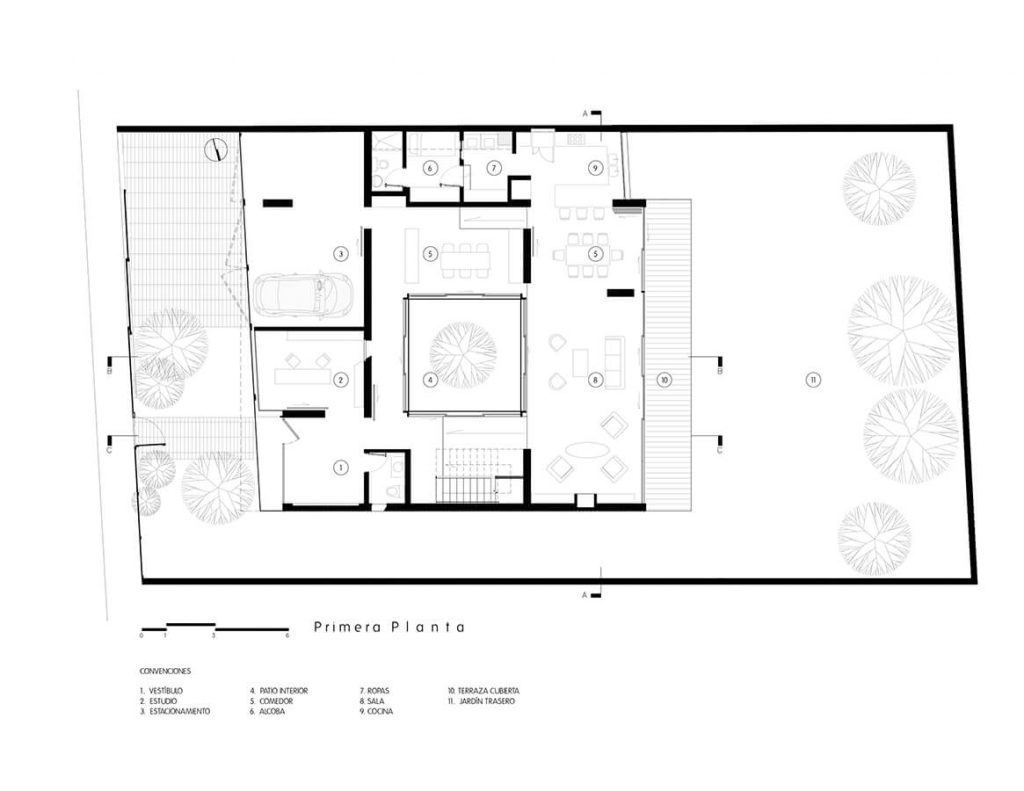
La obra favorita de Guillermo Fischer
Hacia el 2017, el arquitecto desarrolló una obra residencial en el norte de la capital que reúne gran parte de los atributos propios de su arquitectura. Diseñada para una familia con tres hijos, tiene un área de 420 metros cuadrados y está ubicada en un lote con un gran jardín.
Para aprovecharlo, Fischer implantó la vivienda lo más adelante posible, y así logró dejar un generoso patio posterior y uno interior. “Siempre me ha interesado recuperar la tradición del patio, creo que con el tiempo se ha ido perdiendo, y es una lástima porque además de ventilación, luminosidad y control de temperatura, aporta mucho a la casa”.
En cuanto a la materialidad de esta estructura contemporánea, el punto de partida fue lograr una experiencia sensual, sensorial. Para ello eligió materiales atractivos al tacto, como la madera y el concreto, “como una cueva”. En el interior, el cemento de los muros tiene la textura de la guía de la formaleta, con listones de madera. En el exterior, en las fachadas laterales –que son ciegas– experimenta con la plasticidad del concreto, dándole forma de listones, como una cortina, que a su vez se relacionan con la puerta del garaje.

Lo invitamos a ver algunas fotos de este proyecto para recordar el legado del maestro que de seguro todos extrañaremos, pues la forma en la que sus obras se relacionaban con las personas tiene un sello propio difícil de igualar.
La prueba de su excelencia está en las múltiples distinciones que recibió durante su carrera, dentro de las que se destaca el Premio XX Bienal de Arquitectura categoría arquitectura de interiores Sociedad Colombianade Arquitectos.













