Iconos arquitectónicos: Museo de Arquitectura Leopoldo Rother

El Museo de Arquitectura de la Universidad Nacional fue creado en 1986 por el Consejo Superior Universitario por solicitud de la Asociación de Arquitectos Egresados de la Universidad Nacional y la Facultad de Artes en el marco de la conmemoración de los primeros 50 años de la creación de la carrera de arquitectura.

Artículos destacados

Conozca la arquitectura del Centro de Archivos Militares Pritzker

Una cocina de lujo que combina tradición y modernidad en Boyacá

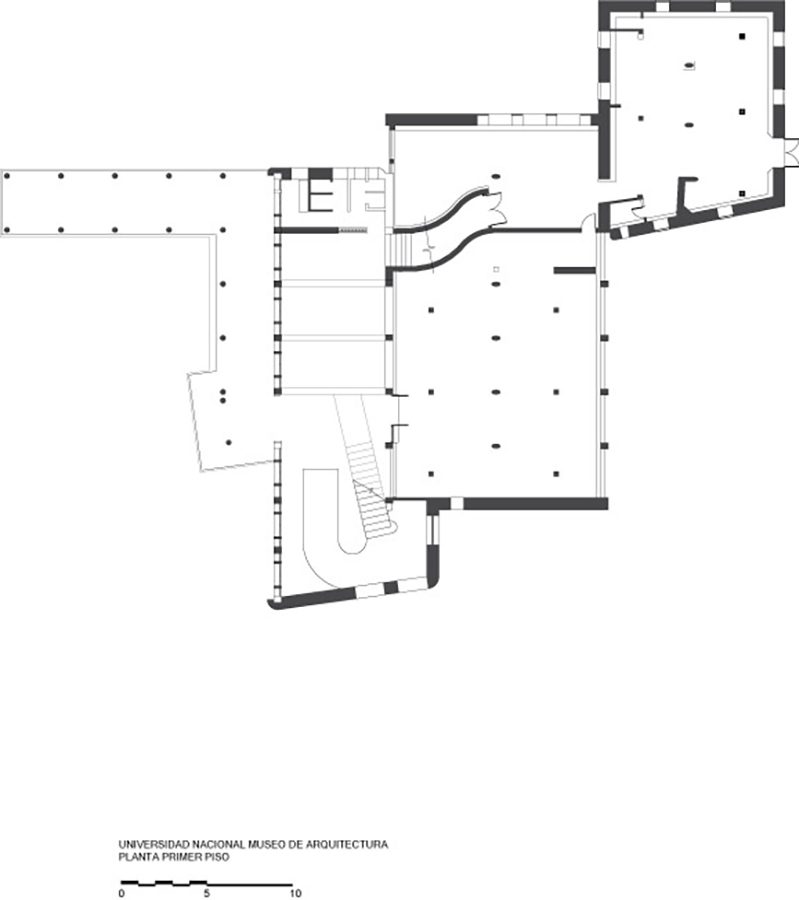
En 1992 el museo adoptó el nombre del arquitecto alemán Leopoldo Rother (1894-1978), quien en 1938 se vinculó por primera vez a la actividad docente en la Facultad de Arquitectura de la Universidad Nacional. Como sede para el Museo de Arquitectura se escogió la edificación diseñada por el mismo Rother para albergar la imprenta de la universidad y que fue readecuada con este fin. En la actualidad en este museo se conserva el archivo documental de varios arquitectos nacionales y extranjeros como el del mismo Leopoldo Rother, de los italianos Vicente Nasi y Bruno Violi y de los colombianos José María Montoya Valenzuela y Fernando Martínez Sanabria.Iconos arquitectónicos: museo de arquitectura leopoldo rother

Una visera de hormigón armado, levemente inclinada y apoyada sobre dos esbeltos pilares cilíndricos, sirve de acceso a esta edificación, en la que no obstante su uso industrial original, Rother puede apelar a esa racional sensualidad que también pone en evidencia en sus trabajos de la misma época para el Centro Cívico de Barranquilla (1945) o el edificio de Mercado en Girardot (1946-1948).Iconos arquitectónicos: museo de arquitectura leopoldo rother

Una sinuosa rampa-escalera lateral conduce al espacio central, actualmente destinado como área de exposiciones, donde las dos curveadas cáscaras de hormigón armado, con su estructura a la vista, que le sirven de cubierta, se entrecruzan en direcciones opuestas, definiendo una franja de iluminación indirecta, mientras se apoyan sobre una línea continua de pilares cilíndricos. En el nivel exterior se destaca la fachada principal de acceso, que rítmicamente se compone por delgados pilares que enfatizan las líneas verticales y enmarcan superficies acristaladas que dotan de liviandad y transparencia al conjunto.Iconos arquitectónicos: museo de arquitectura leopoldo rother

//old-axxis.prueba-16.shop

Comparte este artículo
lateral-derecho1
Haz clic aquí
lateral-derecho2
Haz clic aquí
lateral-derecho3
Haz clic aquí
lateral-derecho4
Haz clic aquí
ads-codigo-fijo-pc
Haz clic aquí

Otros artículos

Interiorismo cálido: un apartamento remodelado para borrar los límites con el paisaje

La remodelación de este apartamento resultó en una atmósfera cálida, iluminada y vinculada al paisaje exterior, gracias a una propuesta visual que acentúa la madera.

Un espacio inspirador: mobiliario para crear un estudio perfecto

Diseño, comodidad y estética se unen en estas piezas de mobiliario para amoblar el estudio ideal.

Oficinas que se sienten como hogar: su diseño está inspirado en Colombia

Mil metros cuadrados —distribuidos en dos niveles— contienen estas oficinas, que plantean un homenaje a las riquezas naturales y humanas de Colombia a través de una arquitectura y un interiorismo que rememoran el hogar.

Suscríbase a nuestro newsletter

Para recibir todo nuestro contenido

Nombres
Correo electrónico