El arquitecto pereirano Jaime Vélez desarrolló gran parte de su vida profesional en Estados Unidos, donde trabajó en SOM –Skidmore Owings & Merrill–, una de las firmas norteamericanas de arquitectura más importantes a escala global. A su regreso a Colombia –donde fundó la firma Vélez+Valencia junto con el arquitecto también pereirano Óscar Valencia– decidió hacer su casa, donde pudiera concentrar sus intereses respecto al proyecto arquitectónico. El lugar elegido fue Condina, en Pereira, Risaralda, sector que goza de un clima fresco. Gracias a su posición privilegiada, el lote domina el paisaje montañoso y ofrece una vista de casi 360 grados sobre la vegetación tropical y la geografía del entorno.

casa ofrece una vista de casi 360
grados sobre el entorno natural.
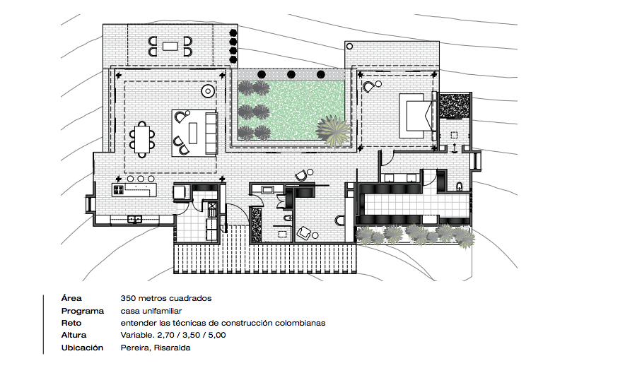
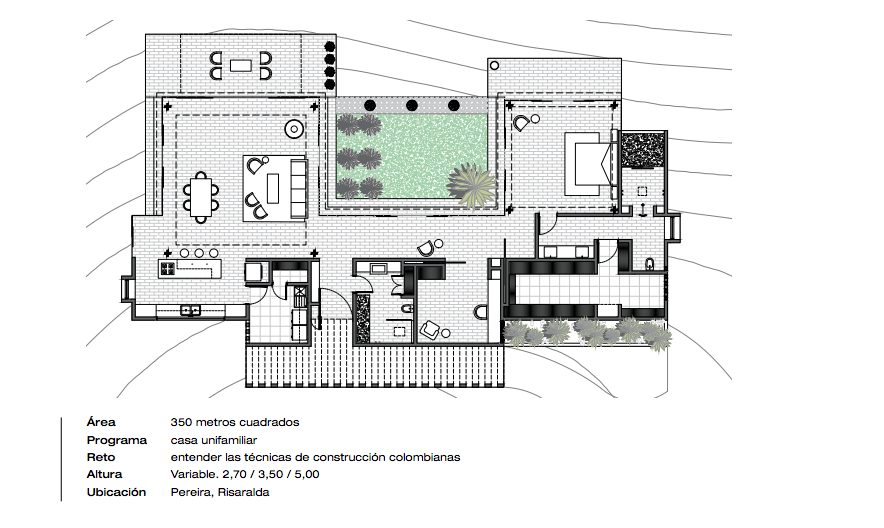
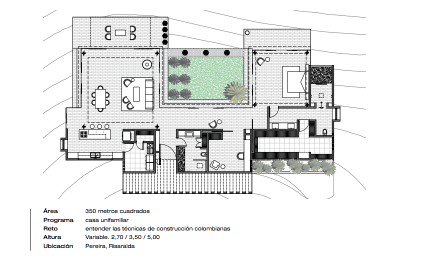
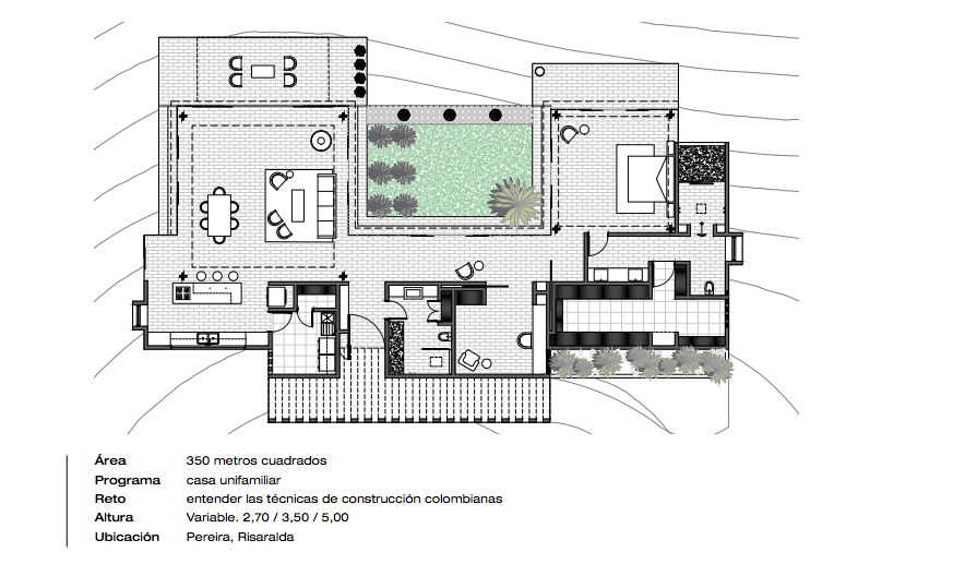
Una de las estrategias implementadas en el diseño de la casa fue tener la mayor transparencia posible hacia el paisaje; así, 39 metros lineales de vidrieras de piso a techo definen el perímetro de la construcción. Por otro lado, utilizaron pocos materiales, con ladrillo pintado en algunos muros de fachada y travertino en el piso de todas las áreas de la residencia. Revistieron la parte superior externa de los volúmenes con láminas de acero inoxidable a manera de shingle, que al reflejar la luz del sol producen destellos y cambian de tono durante el día. El acceso está determinado como un corredor exterior cubierto con una pérgola de concreto, cuyas vigas se pliegan para convertirse en una secuencia de columnas y así generar una sensación de túnel. Luego de atravesar una puerta roja de 1,5 metros de ancho, la vivienda se abre espacialmente con estancias amplias a doble altura.

El área de la casa fue aprovechada de tal forma que cada espacio sea lo más generoso posible. Con 350 metros cuadrados de superficie construida, Vélez propone una vivienda con única alcoba, acompañada de un walk-in closet y un baño, ambos de gran tamaño. En lugar de aumentar el número de ambientes con más habitaciones, la apuesta consistió en tener menos, siempre orientados al paisaje y donde se pueda estar de una manera más cómoda. La arquitectura de este proyecto surge desde el deseo de mirar. Quienes la viven se convierten en espectadores del cielo y del follaje de los árboles. Sus planos de fachada desdibujan el límite entre el adentro y el afuera en una maniobra ampliamente utilizada por los arquitectos modernos. Una caja transparente y reflectante en medio de las montañas. ■
Lea más en nuestra sección de arquitectura.




