Conozca las primeras casas portátiles prefabricadas de Colombia

Gracias a su diseño modular, esta vivienda cabe en un camión y tras su ensamble puede “desarmarse” para ser reubicada. Con esta iniciativa, un estudio de arquitectura caleño busca transformar la negativa percepción que se tiene en Colombia de las viviendas prefabricadas.

Artículos destacados

Tres obras que revelan una arquitectura sensible a la identidad, los oficios y la memoria

Equilibrio, potencia y calma: Mazda CX-60 PHEV, la experiencia de conducir desde el diseño

Donde llegue un camión de gaseosa, allá llegan nuestras casas”, dice con humor el arquitecto Felipe Lerma –director de Colectivo Creativo Arquitectos–, del proyecto de casas modulares Vimob, basado en un concepto “de prefabricación y ensamble, capaz de albergar los espacios esenciales de una construcción tradicional en un prototipo práctico, flexible, atractivo y moderno”.

Conozca el aeropuerto más grande del mundo hecho por Zaha Hadid. 

Asegura que con esta propuesta buscan que la arquitectura “se convierta en un producto. Al estar la vivienda basada en un concepto de prefabricación, la vas industrializando. En la medida que se industrialice es más eficiente”. Pero más allá de esto, lo que sobresale es la posibilidad de implantarla casi en cualquier lugar sin afectar de manera considerable el medioambiente. Es una casa que en su totalidad puede embalarse en un camión. La idea de que su transporte fuera sencillo, surgió tras graduarse como arquitecto. “Visité la finca de un familiar que tenía un acceso muy complicado. Luego me regalaron allí una porción del terreno, pero llevar los materiales y la maquinaria para construir era complejo. Así que regresé a mi oficina para crear una solución”.

Casas prefabricadas Colombia

Tras un año de investigación, junto con su equipo, encontró la solución. “Teníamos que definir cómo iban a ser los ensambles, la estética, qué materiales podíamos usar para tener el mínimo trabajo en obra, por eso empleamos unos que no requieren un acabado en el sitio”. Con su diseño, los interesados solo deben tener en el terreno el punto hidráulico, el sanitario y el eléctrico. Sin embargo, para quienes desean ubicarla en lugares más inhóspitos ofrecen una opción autosostenible: “Para el agua utilizamos recolección de aguas lluvias o pozo de aljibe, la parte sanitaria se solventa con un pozo séptico, y lo eléctrico, con energía solar”.

La arquitectura sostenible se presta para diversas interpretaciones. Para algunos arquitectos se basa en el ahorro de energía, otros apelan al uso de materiales reciclados, y para Colectivo Creativo Arquitectos “es hacer eficientes los procesos constructivos. En nuestro caso, lo que buscamos es afectar al mínimo el terreno, y en la producción reducir la huella ambiental”.

Casas prefabricadas Colombia

Sus casas Vimob disminuyen la afectación del terreno y el impacto en el medioambiente. Al ser totalmente prefabricadas, durante la construcción emplean menos agua
–muchos de los productos son en seco– y los desperdicios son casi nulos. Así mismo, el suelo no sufre ningún tipo de alteración, pues no deben llevar maquinaria pesada y la vivienda está suspendida, solo deben hacerse unos pocos huecos para las zapatas.

Además, la vivienda en sí es reutilizable. De quererse, sus partes pueden desarmarse y reensamblar en un nuevo lugar –casi se le podría llamar casa portátil–. Esto gracias a la resistencia de sus materiales.

Casas prefabricadas Colombia

En cuanto a materiales, para la fachada utilizaron fibrocemento tipo madera, “pues da una imagen natural, pero una garantía de años por ficha técnica”. En el interior, el aglomerado OSB –Oriented Structural Board–, reciclado de pino, se ve en las paredes. Por su parte, el techo es un cielorraso en machimbre de pino pátula y el piso laminado es un HDF de alto tráfico –el 90 % de la madera de este último proviene de bosques de manejo sostenible–. Todos con facilidad para ser reciclados.

Casas prefabricadas Colombia

Su diseño se basa en la modulación de placas. Por eso sus ventanas son de forma alargada –cuya apertura hacia el exterior facilita el ingreso del viento para mejorar la temperatura interior–. Así mismo, el salón tiene una estrecha relación con el exterior, “sabemos que esta vivienda se presta más para estar en la naturaleza, por eso el complemento de esta zona social siempre son las terrazas, que además ayudan a duplicar el espacio”.

Casas prefabricadas Colombia

Conozca el edificio 8111, la obra bogotana que participará en la Bienal de Arquitectura y Urbanismo.

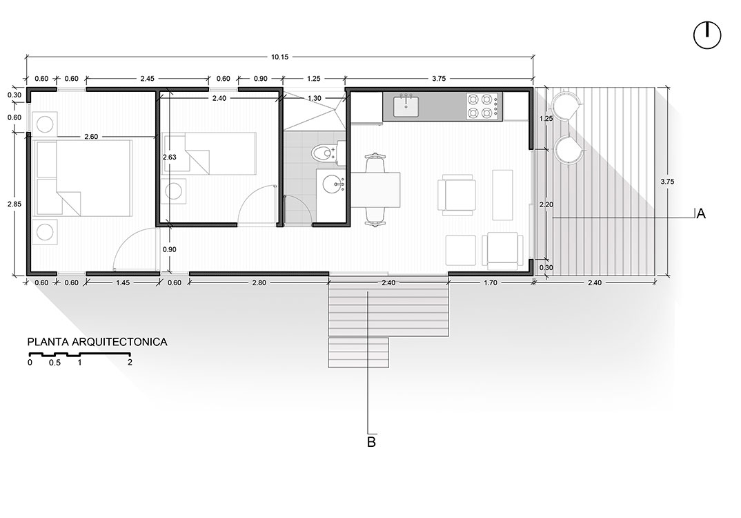
Y aunque es un elemento prefabricado, da un poco de espacio para la personalización. La casa viene en cinco tamaños, XS, S, M, L y XL –siendo la XS un monoambiente, la M una vivienda con dos habitaciones, baño y zona social, y la XL tres módulos M unidos por las terrazas–, lo cual permite que las personas las mezclen dependiendo de sus necesidades, como si de un lego se tratara. No obstante, en cuanto a su interior, los cambios deben respetar el ancho de la estructura y no deben ser drásticos.

Pese a sus aciertos, Colectivo Creativo Arquitectos aún debe enfrentar un reto, quizá el más difícil: la percepción de mala calidad, de incomodidad y de poca estética que se tiene en Colombia frente a las casas prefabricadas. En este punto será el usuario final el encargado de juzgar.  

colectivo-creativo-arquitectos-revista-axxis-6

Comparte este artículo
lateral-derecho1
Haz clic aquí
lateral-derecho2
Haz clic aquí
lateral-derecho3
Haz clic aquí
lateral-derecho4
Haz clic aquí
ads-codigo-fijo-pc
Haz clic aquí

Otros artículos

Un café en Bucaramanga que apuesta por la permanencia y la honestidad material

Un antiguo inmueble de más de 60 años se convierte en un café gracias a un diseño arquitectónico que honra la pausa, la luz y los materiales nobles.

El diseño de una poltrona inspirada en las ruinas de civilizaciones antiguas

Esta poltrona, inspirada en las ruinas de civilizaciones antiguas, está concebida ya sea para fundirse con la armonía de un espacio o, por qué no, romperla.

Las tendencias para este 2025 en el mundo de los tejidos y los tapetes

Una de las tendencias más relevantes en el sector de los tapetes es el uso de materiales no solo responsables con el medio ambiente, sino que se puedan reciclar en su totalidad.

Suscríbase a nuestro newsletter

Para recibir todo nuestro contenido

Nombres
Correo electrónico