La idea inicial de este proyecto fue fusionarse con la montaña, anclarse en el terreno hasta que se convierta en uno con la residencia. Al ingresar al sitio desde abajo, se ve un volumen negro que parece emerger de la pendiente y desprenderse de la vegetación circundante. Su forma oscura truncada hace eco de las proyecciones rocosas que habitan el sitio.
Las áreas de estar, ubicadas en el piso de arriba, ofrecen al ocupante una relación íntima con el sitio, un nivel de acceso a una naturaleza salvaje e intacta a través de una gran terraza perfilada según la topografía. En el otro extremo, la casa se eleva por encima del vacío, lo que permite un punto de vista atmosférico hacia las copas de los árboles.
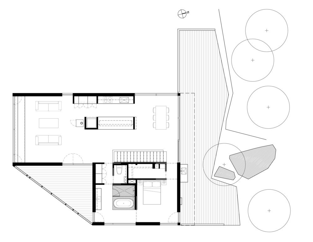
Un espacio de utilidad protegido por la proyección de la planta superior da acceso a la residencia. Desde allí, una escalera de madera conduce al piso principal, donde los espacios fluyen libremente bajo un techo plano y flotante, mostrando una estructura de madera laminada. Un curso interno circula de habitación en habitación, siguiendo las paredes exteriores.
Las paredes se abren al final de cada eje para ofrecer una vista de los árboles circundantes, creando la sensación de estar protegidos bajo el techo de madera e inmersos en el bosque. La cocina, terminada en chapa de pino blanco, está enmarcada por dos bloques paralelos de color blanco que forman un vínculo indirecto con el comedor contiguo. Este espacio se abre completamente en la pendiente ascendente y diálogos con la roca que se encuentra cerca, integrada en la terraza.
En continuidad con el dormitorio principal, el circuito ambulatorio continúa a lo largo de la periferia del espacio ocupado por el baño, en el centro de la cual un bloque de ducha de baño se enfrenta a una enorme ventana, colocando al usuario en intimidad con el bosque. Anidada entre este espacio y la sala de estar, la galería de forma triangular se abre a una cubierta de hojas, un nido encaramado en el hueco del paisaje. Como la casa como un todo, un refugio anclado y aéreo.






