El ingreso a esta casa no es lineal. Al caminar entre un volumen casi hermético de ladrillo y el verde del alto de Las Palmas, donde está ubicada, se descubre lentamente la propuesta del arquitecto paisa Juan Camilo Llano, realizada en colaboración con los arquitectos Carlos Andrés Holguín –antioqueño– y Juan Manuel Portillo –venezolano–, de Llano Arquitectos.
Acá le contamos por qué tejer es el camino a la sostenibilidad.

Huellas de concreto de generosas proporciones guían al visitante por un recorrido en “L”, que en su tramo final transcurre entre un jardín tropical: “No queríamos que la vegetación fuera solamente un elemento decorativo, por eso sembramos de manera aleatoria especies nativas del lugar –como helechos sarros–, así parece que llevaran mucho tiempo en el terreno, no se ven impuestas”, explica Llano.

Y para reforzar el uso de este trayecto y desmotivar el acceso a la vivienda a través del garaje, ubicaron en este último una puerta que entrega al sendero verde. Como remate, un cubo de concreto con un gran portón negro da la bienvenida.

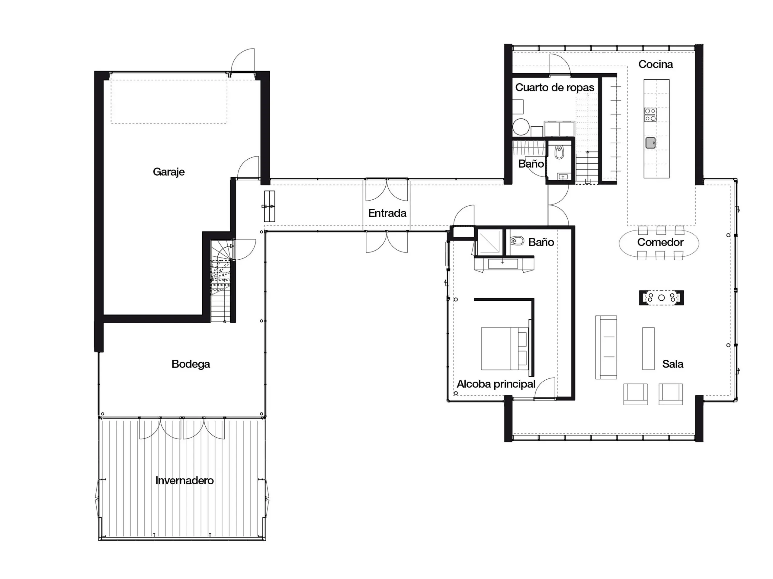
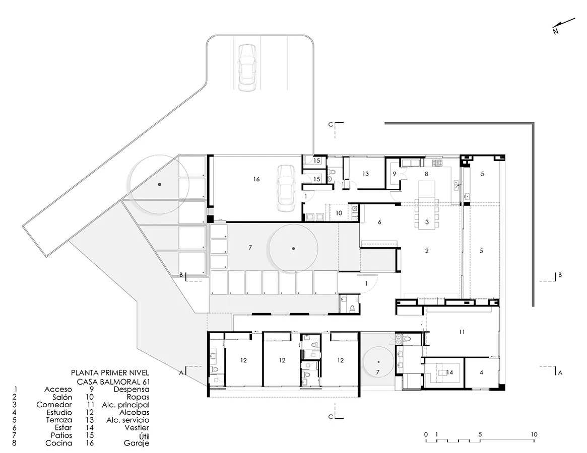
Tras cruzar la puerta se revela el área más interesante de la casa: la zona social. Este ambiente integra sala, comedor, cocina, estudio y terraza, mientras juega con las escalas del cielorraso debido a que combina un techo a dos aguas con uno plano.

Sin embargo, las miradas se centran en cómo el gran muro de concreto que contiene la chimenea de leña ingresa suavemente en el interior de la vivienda. El manejo que le dieron en la sala al cielorraso a dos aguas es interesante, pues no se interrumpe cuando llega a las ventanas, sino que permite que su geometría continúe hasta el final de la terraza.

“En la zona interior es de drywall, pero al final se transforma en una pérgola inclinada que acaba de completar la sección de la casa; uno desde adentro lee completamente esa cubierta, pero nota que se degrada al llegar al exterior. La estructura metálica pintada de blanco está protegida con un vidrio para tener iluminación natural durante el día, mientras que en la noche funciona con spots”.

La humedad, las bajas temperaturas y las lluvias del alto de Las Palmas –a 2.550 msnm– determinaron el desarrollo de este proyecto residencial.

“La urbanización tenía un manual que pretendía una escala un poco más horizontal y evitar los techos a dos aguas, pero creíamos que no era consecuente con el clima. Además, el cliente quería una casa arquetípica, así que logramos que aceptaran nuestra propuesta”.

Partiendo de la vivienda que tenía en mente el propietario, Llano trató de ir más allá y utilizó el techo a dos aguas como recurso para “lograr cubiertas con proporciones cambiantes, que el cielorraso se empezara a despegar para generar una topografía interior que facilitara crear distintas atmósferas.

El trabajo más importante a nivel espacial es cómo resolver la escala y pliegues dentro de la casa”.

Un ejemplo claro lo constituye la zona social, donde salón y cocina se diferencian de manera visual por el techo –en el último ambiente es plano y más bajo–, a pesar de estar totalmente integrados.

“El cliente quería que la cocina tuviera una remembranza europea, donde todo está a la vista, quería que se sintiera muy clásica y no tan moderna”.

Para mantener una temperatura ideal optaron por una ventanería termoinsulada compuesta por ventanas dobles con una cámara de aire en el interior; aislantes entre el cielorraso y la cubierta, y teja shingle negra que durante el día absorbe el calor de los rayos solares. Además, el ladrillo utilizado en la fachada aporta a este punto.

En cuanto a su distribución, la estructura en forma de “U” da lugar a tres grandes elementos: un ala que contiene la zona de servicios, el garaje y la cocina –la única de techo plano–; un volumen de mayor dimensión –enfrentado al paisaje– compuesto por el salón, la terraza y la alcoba principal; y el último, destinado para los espacios privados, donde están un jardín interior, las dos habitaciones de los hijos de los propietarios y el dormitorio de huéspedes.

Así, esta casa se presenta ante el paisaje del alto de Las Palmas como una estructura que toma elementos que podrían considerarse clásicos –como una cubierta a dos aguas–, para crear una propuesta de corte contemporáneo donde el juego con las escalas genera diversos tipos de atmósferas, todas pensadas para una placentera vida en familia.

