La casa en el aire: la vivienda con la mejor vista de Cajicá

La estructura de concreto permite levantar la vivienda sobre el terreno para el paso de las aguas lluvias que bajan por la ladera.

Artículos destacados

Siete casas pensadas para refugiarse de la nieve

La experiencia espacial en esta casa diseñada para salvaguardar las memoria familiar

En los espacios domésticos, cada vez más restringidos en las ciudades de hoy, las alternativas de ejercicio y recreación implican salir de casa. Sin embargo, una familia halló en los alrededores de Cajicá el lugar adecuado para tener una vivienda equipada con todo lo necesario para realizar dichas actividades bajo techo, pero con mucho sol y rodeados por una vista privilegiada.

La casa en el aire: la vivienda con la mejor vista de cajicá

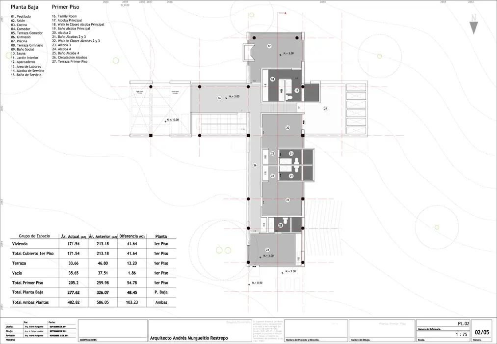
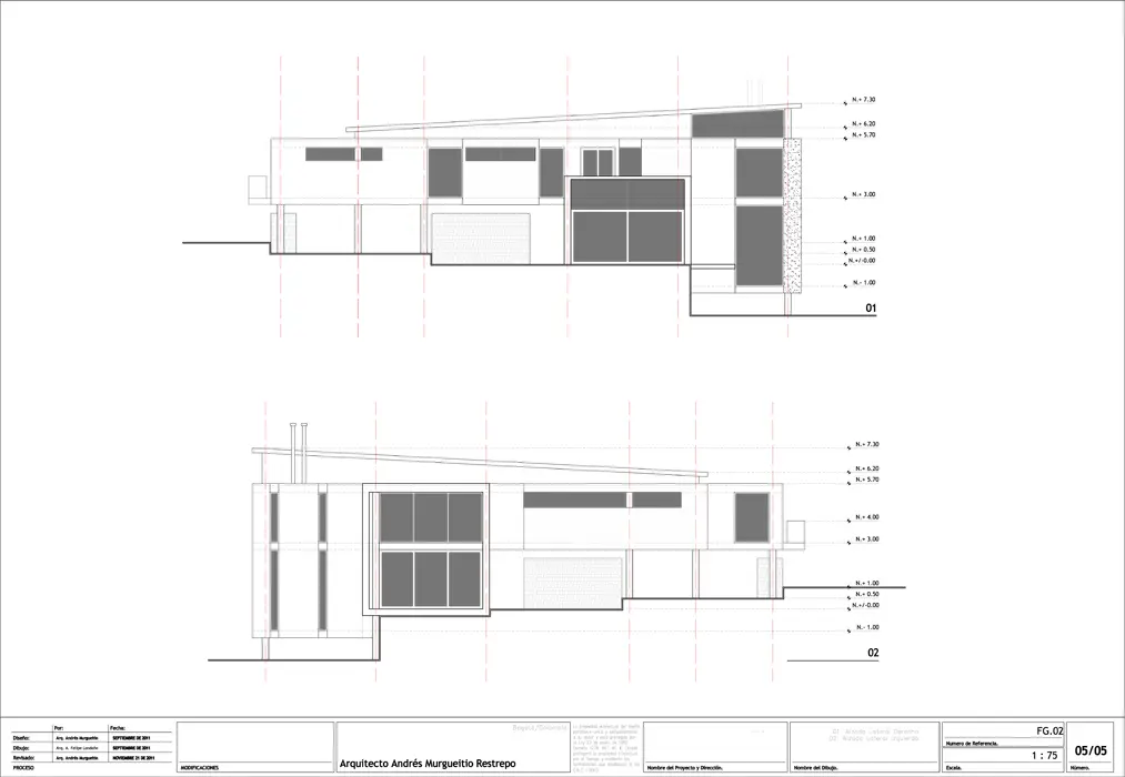
Para acomodar los requerimientos del programa que ocupa un área de 482 metros cuadrados, al relieve de la ladera, el arquitecto Andrés Murgueitio planteó un diseño que aprovecha las posibilidades del concreto y vuela sobre el terreno que queda casi intacto bajo la estructura de la vivienda. “Como el lote está cruzado por una escorrentía que conduce las aguas de la montaña cuando llueve, levantamos la casa para respetar esa característica”, explica.

La casa en el aire: la vivienda con la mejor vista de cajicá

La casa en el aire: la vivienda con la mejor vista de cajicá

Además de la adecuación estructural a la topografía, el diseño contempla el sembrado de especies nativas para reconstruir la ambientación natural del bosque.

La casa en el aire: la vivienda con la mejor vista de cajicá

Por otra parte, la arquitectura se resuelve mediante el cruce de dos volúmenes rectangulares con dos plantas principales.

La casa en el aire: la vivienda con la mejor vista de cajicá

En el primer piso, el tramo de la entrada y los garajes separan la zona de servicios del nivel de actividad social, donde un vestíbulo de ingreso distribuye a la sala, medio piso más abajo, con un amplio ventanal sobre la montaña y la sabana.

La casa en el aire: la vivienda con la mejor vista de cajicá

A la derecha están el gimnasio y la piscina, abiertos al sol del poniente, y a la izquierda, la cocina en corredor y el comedor de doble altura con puertaventanas de vidrio y marquesinas que permiten una abundante entrada de luz y calor, especialmente en la mañana.

La casa en el aire: la vivienda con la mejor vista de cajicá

Para los ambientes de mayor actividad escogieron pisos de ladrillo vitrificado y en la sala instalaron un recubrimiento de tono de madera clara, tratamiento que también se dio a las alcobas y a los espacios familiares del segundo piso, al que se accede por una escalera de dos tramos bastante extendida, con una pendiente semejante a la de una rampa.

La casa en el aire: la vivienda con la mejor vista de cajicá

Junto a la escalera, en el segundo piso, un estar familiar comparte las características de vista y luminosidad del resto de la casa y marca el acceso al ala privada, ocupada por cuatro alcobas.

El efecto de la pendiente de la cubierta resulta en la doble altura de la habitación principal, con una chimenea semejante a la de la sala y un impresionante despliegue de ventanas de piso a techo que la convierten en un mirador sobre el bosque y la pradera.

La casa en el aire: la vivienda con la mejor vista de cajicá

Los muros y las columnas de concreto a la vista y los planos de vidrio le dan a la casa un aspecto que recuerda el lenguaje de la arquitectura moderna, que se enriquece con el uso de superficies de ladrillo ocre y acabados de pintura gris y marrón que completan una gama de materiales de tonos tierra que integran el diseño con el paisaje.

La casa en el aire: la vivienda con la mejor vista de cajicá

Sencillos y llenos de luz, los interiores se ambientan con mobiliario clásico del siglo XX y objetos curiosos e interesantes que le aportan color y variedad a los espacios de esta casa, que invitan al movimiento y a la actividad sin perder de vista en ningún momento el contacto con el entorno natural de la sabana.

La casa en el aire: la vivienda con la mejor vista de cajicá

 

Comparte este artículo
lateral-derecho1
Haz clic aquí
lateral-derecho2
Haz clic aquí
lateral-derecho3
Haz clic aquí
lateral-derecho4
Haz clic aquí
ads-codigo-fijo-pc
Haz clic aquí

Otros artículos

¡Nueva edición de Expoartesanías! Colombia el país de la potencia artesanal de Latinoamérica

Entre el 5 y el 18 de diciembre de 2025, Expoartesanías reúne a miles de visitantes en una edición que refleja el crecimiento histórico del sector, la internacionalización de piezas emblemáticas y el fortalecimiento territorial de la artesanía colombiana.

Un ejemplo de vivienda con una magnífica arquitectura serena y atemporal

Esta vivienda integra paisaje, materialidad y eficiencia en un gesto arquitectónico que apuesta por el equilibrio.

Así lucen las oficinas de un estudio de diseño: bienestar, colaboración y sostenibilidad

Materiales sostenibles, luz natural, texturas orgánicas y zonas colaborativas convierten esta sede en un modelo inspirador para repensar la relación entre trabajo, creatividad y naturaleza.

Suscríbase a nuestro newsletter

Para recibir todo nuestro contenido

Nombres
Correo electrónico