En las montañas de Llanogrande, en las afueras de Medellín, la bruma y el frío se escabullen entre las sombras que los bosques dibujan sobre el relieve irregular de la topografía. La vocación de esta zona del oriente antioqueño está volcada a las viviendas unifamiliares, generalmente de recreo y descanso, en parcelaciones cerradas ubicadas sobre las márgenes de las carreteras. Este es un suburbio semirrural que, como un tapiz de construcciones intermitentes, coloniza el paisaje. Siendo este último una fuerza determinante del lugar, esta casa, diseñada y construida por el arquitecto paisa Andrés Uribe Mesa, entiende el entorno como un telón de fondo sobre el cual surge una figura, el proyecto mismo.
La relación fondo-figura, propia del arte clásico, aparece reinterpretada como un interés de la arquitectura moderna de principios del siglo XX, cuya influencia es evidente en este proyecto. Gran parte de la célebre arquitectura doméstica de la modernidad establece un vínculo con su emplazamiento en estos términos.
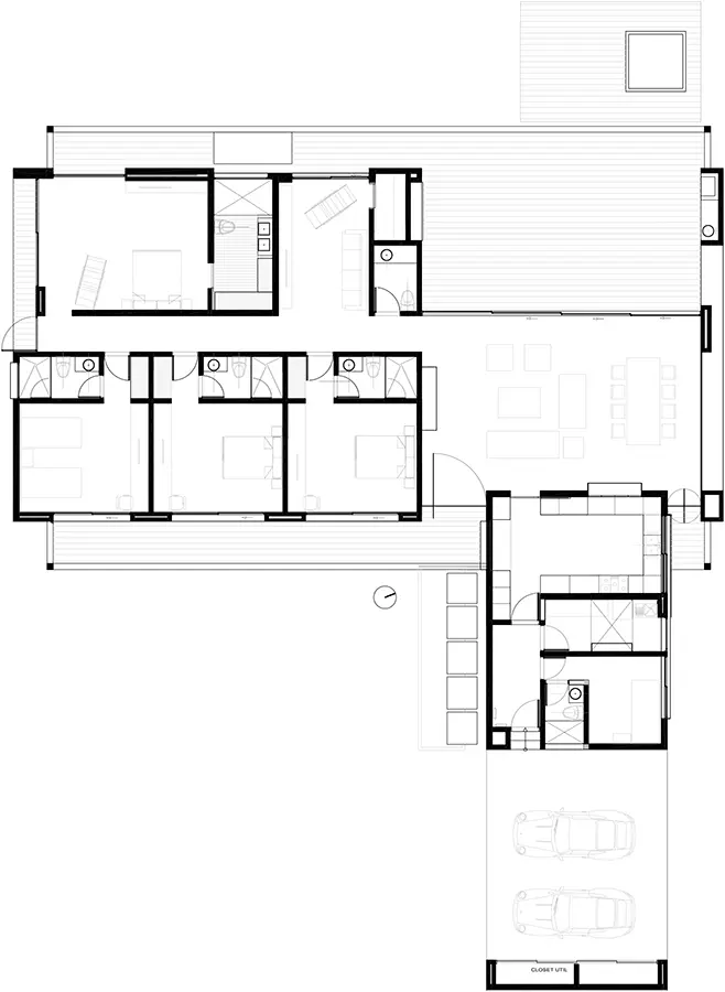
La morada de ese periodo histórico se constituye como un dispositivo para habitar en medio del paisaje; para mirarlo desde la comodidad y el resguardo interior de un salón con muebles cómodos al calor de una chimenea, como en este caso. Dos volúmenes, uno frío y pétreo, el otro cálido y texturizado, se articulan a noventa grados.
Esta simple estrategia geométrica configura la llegada como un lugar abierto delimitado por las fachadas principales y la densa vegetación que bordea el lote. Expuesto, un pórtico de estructura un exoesqueleto que revela la verdad estructural de la construcción y actúa como un contenedor sutil de aristas negras, que dibujan un tercer espacio apenas presente.
En esta propuesta hay una obsesión por lo ortogonal, un interés por el prisma rectangular como expresión volumétrica de la arquitectura. La zona de servicios está agrupada en uno de estos cuerpos, quedando separada de las partes más privadas de la casa. Las habitaciones se encuentran en el extremo opuesto, articuladas por un corredor que se abre en la sala de estar.
En medio de estas dos áreas, privada y operativa, aparece un salón comedor integrado a un segundo salón exterior, cubierto por una pérgola de madera que resguarda del sol y proyecta líneas de luz sobre los pisos, muros y mobiliario. Este espacio, característico de las viviendas campestres de recreo, da cuenta de una de las apuestas fundamentales de Uribe Mesa en el proyecto: establecer una relación difusa entre el exterior y el interior.
A través de las vidrieras que vinculan el salón exterior con la zona social interior se establece una relación de continuidad entre estar adentro, afuera y habitar este espacio de transición. Un BBQ integrado define el uso de este ambiente intermedio como un lugar de reunión rodeado de paisaje. La morada se construye para diluirse con los árboles que la envuelven, en un paisajismo planteado por el mismo arquitecto, que trabajó en el pasado para el Jardín Botánico de Medellín. El interior se define de una manera sencilla.
El uso de la geometría genera una espacialidad tranquila y clara que se traduce en una lectura coherente. Lejos de presentarse como ostentoso, el mobiliario refuerza la idea de simpleza con sus colores y su diseño. Los 430 metros cuadrados de esta casa gozan de un ambiente sereno que toma relevancia cuando entra en contraposición con su entorno inmediato. Se trata de una arquitectura que renuncia a las formas fastuosas para incorporarse de manera modesta a un lugar exuberante. Un juego calmoso de volúmenes sobrios en medio de un bosque privado. El proyecto aquí se somete al espíritu del entorno.










