Casa de campo inspirada en Alvar Aalto

La arquitectura de esta casa privada en Moskva, Rusia, es una síntesis de materiales naturales, como la piedra, la madera y formas geométricas simples.

Artículos destacados

Así el Museo de Arte del Banco de la República sigue transformando el espacio público

Arquitectura que perdura: la esencia de la piedra natural

El diseño moderno de la fachada combina piedra y madera: el acabado exterior, con cálidos tonos de travertino y alerce, completa la imagen de una acogedora y moderna casa de campo diseñada por MONOLOKO design y Maxim Kashin. El concepto primario combina geometría minimalista, acabados naturales de color claro y tablones de madera por dentro y por fuera. Al principio, el cliente expresó el deseo de una casa arquitectónicamente interesante que albergaría cómodamente dos generaciones. No había requisitos de estilo en particular, dando al arquitecto la libertad de proponer una amplia gama de soluciones. El diseño final cumple con el objetivo principal: que cada miembro de la familia tenga su propio espacio privado, junto con amplias áreas comunes para socializar.

monoloko-design-diseno-interior-revista-axxis-7

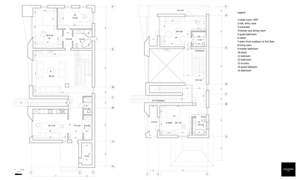
La forma global del proyecto se basa en la integración de tres unidades funcionales en un solo volumen. Como resultado, el plan de la casa es un rectángulo que consta de tres bloques cuadrados dispuestos en una línea. Cada bloque tiene una función específica. La primera contiene la cocina y el vestíbulo en la planta baja, así como un dormitorio y un cuarto de baño arriba. El siguiente bloque es un espacio de doble altura con una sala de estar con chimenea; Una escalera conduce a un par de dormitorios en la planta superior. El tercer bloque, contiguo al segundo, contiene dos dormitorios. El dormitorio principal, incluyendo un estudio y baño se encuentra en la planta baja. Arriba hay otro dormitorio grande, incluyendo un balcón abierto y un baño de invitados.

monoloko-design-diseno-interior-revista-axxis-3

Para hacer cada habitación más accesible, y para aumentar el número de entradas privadas en el segundo piso, existe otra escalera que conduce directamente a los dormitorios. Las mismas escaleras también conducen a un patio de la azotea adyacente a una zona de ocio que incluye un dormitorio y un baño. El exterior y el interior de la casa incorporan minimalismo funcional. La fachada y los acabados interiores están hechos de madera y piedra natural, y hay varios tipos diferentes de superficies blancas en su interior. El interior está inspirado en la obra del gran arquitecto de los años 50 Alvar Aalto.

monoloko-design-diseno-interior-revista-axxis-12

La idea clave detrás del diseño interior es resaltar las conexiones entre los tres bloques funcionales usando madera texturizada junto a la geometría blanca minimalista. El techo de madera con textura desempeña un papel de navegación, guiando a los huéspedes desde el porche de la sala de estar, hacia el corazón de la casa. Cambia de orientación de la horizontal a la vertical. La madera se utiliza de diferentes maneras en casi todas las partes de la casa y para cada elemento interior y luego continúa con fluidez con los componentes de la escalera. Tablones de madera se utilizan en toda la casa, a partir de la entrada, y también se integran en el exterior. Otro elemento interior novedoso es la baranda personalizada. La idea era diseñar una estructura ligera en armonía con la atmósfera general de la casa. Estas barandillas utilizan un sistema de barras de metal cruzadas que proporcionan no sólo atractivo estético, sino que dan soporte estructural a las mismas, sujetándolas con un marco de acero innovador. Gracias a estas soluciones de diseño, el arquitecto logró crear una casa de campo moderna con un concepto arquitectónico.

Model

//old-axxis.prueba-16.shop

Comparte este artículo
lateral-derecho1
Haz clic aquí
lateral-derecho2
Haz clic aquí
lateral-derecho3
Haz clic aquí
lateral-derecho4
Haz clic aquí
ads-codigo-fijo-pc
Haz clic aquí

Otros artículos

Nostálgico y lúdico: un proyecto que prolonga la narrativa arquitectónica de los años ochenta

"Este proyecto continúa con la historia de la construcción en serie de los edificios que lo rodean, que datan de los años ochenta. "

El estudio colombiano presente en el festival de diseño más importante de Europa

El diseño latinoamericano continúa brillando en los escenarios internacionales. Este 2025, Tu Taller Design representará a Colombia en 3daysofdesign, mostrando cómo la tradición artesanal puede dialogar con lo contemporáneo sin perder su raíz.

El diseño de una casa en Estados Unidos que juega con los contrastes y las formas

En esta casa adosada en Brooklyn, Estados Unidos, cada espacio es una composición donde el mármol veteado, las formas curvas y los colores intensos crean una atmósfera de sofisticación melancólica.

Suscríbase a nuestro newsletter

Para recibir todo nuestro contenido

Nombres
Correo electrónico