En febrero la Sociedad Colombiana de Arquitectos dio a conocer a los ganadores del concurso público de Ideas para el diseño de prototipos de unidades habitacionales, sostenibles y productivas para la ruralidad del D.C.

Estos son los 5 proyectos sostenibles que tiene que conocer de Colombia.
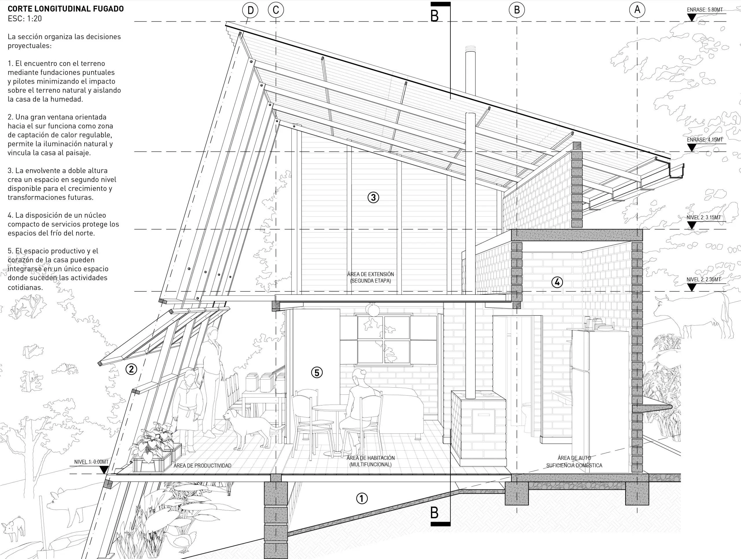
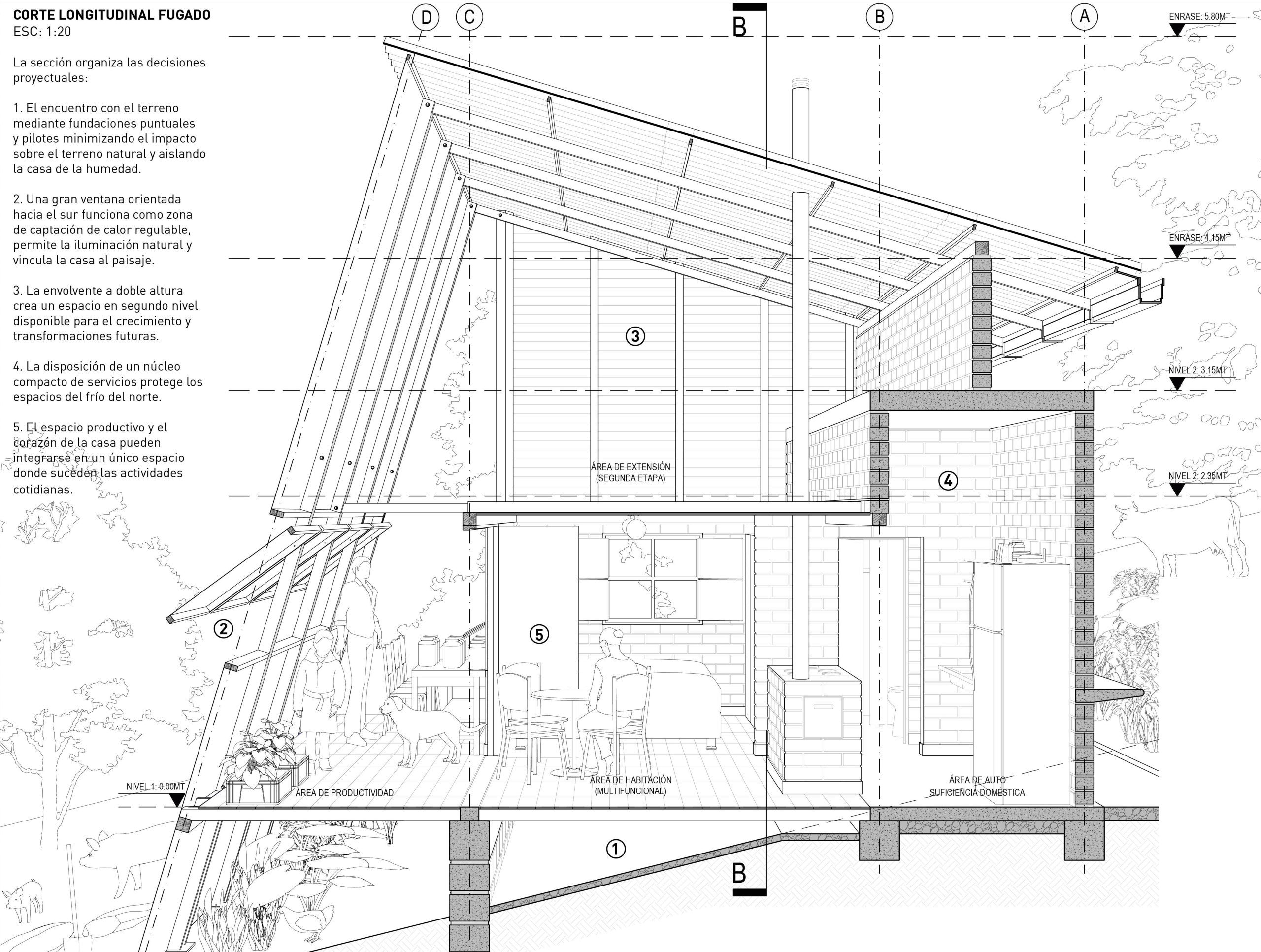
El proyecto ganador quedó a cargo de FP Arquitectos quienes plantearon un prototipo de vivienda rural que además de ser sostenible, tenía que adaptarse a los rurales localizados en tres microclimas (Frío Húmedo, Frío Semi Húmedo y Frío Súper Húmedo), en tres geografías de cuenca (Cuencas Río Tunjuelo, Río Blanco y Río Sumapaz), con pendientes variables y características propias del paisaje andino de montaña.

La vivienda rural, por lo tanto, se concibe como un contenedor activo a las condiciones climáticas, donde se busca principalmente dos condiciones: resguardar el área de habitación contra las temperaturas bajas en la noche, y poner el área productiva frente al paisaje andino de montaña en directa relación con el territorio, zona que involucra actividades de unidad familiar en el día. La vivienda se compone por un núcleo básico de dos habitaciones, servicios (baño, cocina, lavado, almacenamiento) y área productiva. Se concibe la cocina como el centro de la vida familiar rural.

La estufa ecológica, marca el ritmo de las actividades domésticas en el día, mientras que en la noche actúa como un radiador central que permite ganancias de calor. La estufa es el centro calórico de la unidad, dispositivo que permite reunión y protección de la vida interna. Los puntos húmedos (baño y lavado) se localizan en la esquina suroccidental y suroriental para alejarlas del centro calórico de la unidad. En la noche, estas zonas pueden cerrarse para bloquear el ingreso de viento y humedad hacia el interior.

Conozca la Potocine: la primer sala de cine comunitaria de Ciudad Bolivar.
El espacio interior puede gestionarse y transformarse de acuerdo a las necesidades cotidianas de la familia, y ocupar nuevas áreas en el interior del contenedor (progresividad vertical), configurando nuevos espacios de trabajo que fomenten economías alternativas familiares y comunitarias.

Se propone implementar materiales que generan un mínimo impacto ambiental y que estén asociados a técnicas de construcción tradicional, lo que permite involucrar a la comunidad en la construcción e instalación del prototipo. La apropiación tecnológica favorece la sostenibilidad social y económica del proyecto.

El equipo del proyecto está conformado por Iván Forgioni, José Puentes, Daniel Vergara, Camilo Ramírez, Mariana Vélez, Camilo Cano, Akemi Iwai, Susan Londoño, Pedro Vélez, Natalia Gómez, Oscar Meneses, Juan José López, Lorena Mejía.
