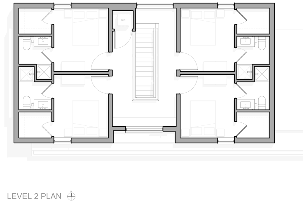
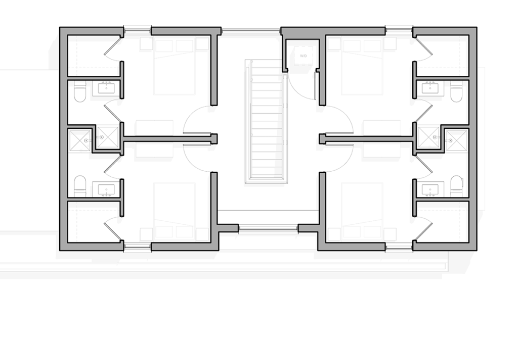
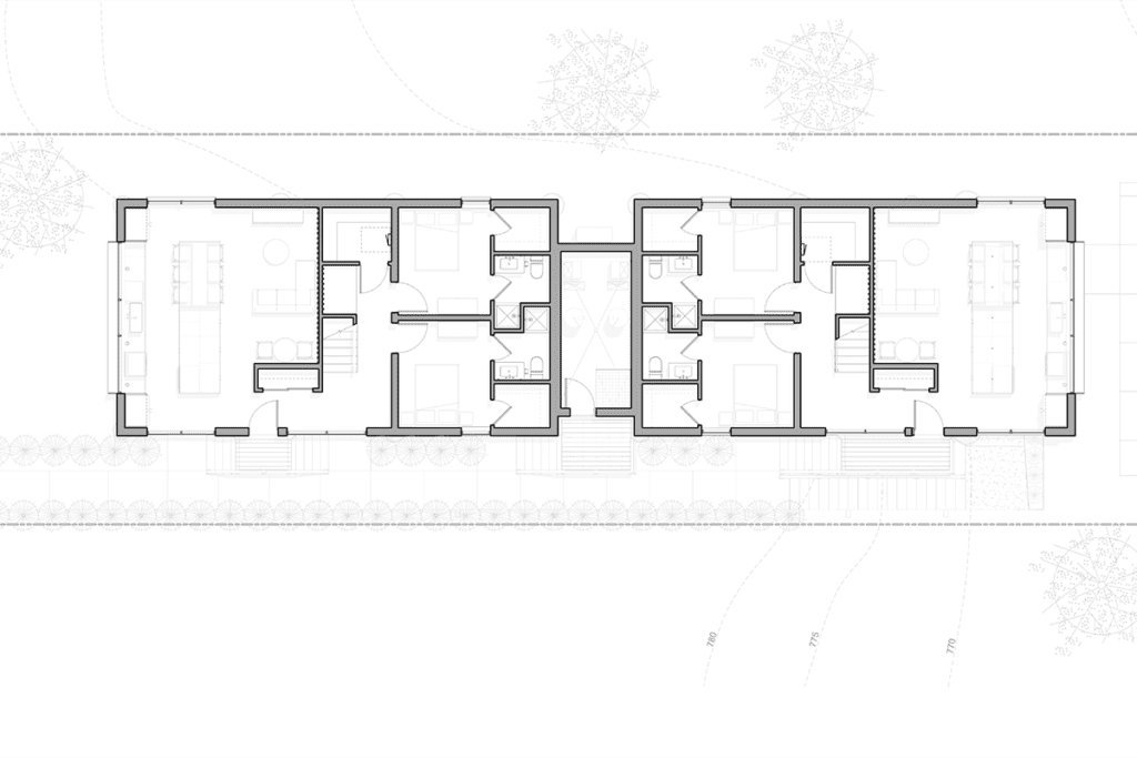
Este desarrollo urbano, denominado “The Little Mod”, ofrece una nueva perspectiva de densidad en el vecindario West 7th de Saint Paul, Minnesota, Estados Unidos. Este edificio, que es un dúplex, cuenta con seis suites de dormitorio y baño compartidos por unidad, lo que suma un total de doce suites.

En esta obra la estética nórdica, con dos materiales sencillos, la madera y paneles de gran formato, está pensada para complementar el entorno, no para competir con él. El edificio está orientado al sur con grandes aberturas para que entre abundante luz natural y calefacción pasiva en invierno.

Frente a múltiples desafíos que consistían en dieciséis pies de cambios de nivel en dos direcciones, lecho de roca cerca de la superficie y un pequeño lote edificable, la intención del diseño fue construir una estructura simple con un impacto mínimo en el sitio.
Un edificio sostenible
El proyecto apunta a un edificio de energía cero que combina una envoltura de obra de alto rendimiento con sistemas mecánicos inteligentes. El modelado energético desempeñará un papel importante en el diseño general de la envoltura del proyecto, junto con la calidad de las ventanas y puertas. El objetivo es producir más energía que el consumo energético anual de la casa.

A principios de 2024, Double Jack necesitaba confiar en las representaciones exteriores para llevar el proyecto a la meta: asegurar la financiación, ganar propuestas de subvención y obtener las aprobaciones de la ciudad. El estudio encargado de la obra, la firma NOMINN, aceptó este desafío creativo y produjo una serie de representaciones impresionantes, cada una capaz de valerse por sí sola como una obra de arte.

«Capturamos la esencia de Little Mod a lo largo de las cambiantes estaciones de Minnesota, mostrando su potencial como una adición inteligente y natural al vecindario tanto para los inversores como para los funcionarios», explica Jake Williams, fundador de NOMINN.

Desde entonces, el proyecto ha obtenido fondos importantes, incluidos los de la Ayuda Estatal para Viviendas Asequibles, la financiación del impuesto HRA de 2023 y la financiación de la Ley del Plan de Rescate Estadounidense. Está previsto que la construcción comience a finales de 2024.

NOMINN también presentó sus representaciones a la 12ª edición anual de los premios Architizer A+ Awards, obteniendo el premio Seleccionado por el Jurado en la categoría Arquitectura + Modelos y Representaciones.
