Aunque tengan espacios semejantes, no todas las casas se diseñan para cumplir con las mismas funciones. Una muestra de lo anterior es una obra de Juan Forero Arquitectos pensada para darle a su dueño áreas amplias y generosas para la actividad social y la hospitalidad.
El altiplano antioqueño intensamente verde y variado en su topografía es el ambiente natural que acoge un proyecto que, más que una casa, es una serie de terrazas, plazoletas y edificaciones que recuerdan la disposición de los conjuntos ceremoniales incas en los que la arquitectura se trenza en un diálogo con las formas y contornos de la naturaleza.
Desde la vía de acceso, el proyecto se lee como un conjunto de volúmenes en mampostería marcadamente horizontales que, como escuadras, delimitan plazoletas recubiertas en piedra arenisca de Barichara, en un entorno de jardines y árboles como yarumos y arrayanes, propios de la montaña andina a unos 2.300 metros de altura sobre el nivel del mar.
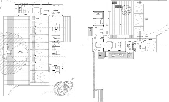
De las dos construcciones en forma de “L” que integran el conjunto, que totaliza 1.341 metros cuadrados, la más cercana al acceso está destinada a los huéspedes.
Esta primera casa tiene un volumen con cubierta plana, ocupado por un pequeño apartamento de dos alcobas, y una unidad mayor, cubierta con una bóveda rebajada, con dos habitaciones, una de las cuales se extiende a una biblioteca. En medio de ellas se ubica una zona social integrada con una cocina abierta cuyo mesón incluye el espacio para un comedor informal.
Demarcado por las dos alas y frente a un patio sombreado por un arrayán está el pabellón de acero y vidrio que alberga siete autos y ocho motos de la colección de vehículos del propietario. Rodeada de jardines, la “casa grande” enmarca un semipatio flanqueado por un muro de contención de piedra, con nichos trapezoidales.
En el garaje, una puerta pivotante da acceso a un corredor que cruza por un costado de la zona de servicios y llega a la social, donde el comedor y la sala tienen lugar bajo una bóveda rebajada y una biblioteca como remate; el piano Pleyel de cola y la chimenea con buitrón de cobre incrustada en la ventana crean un ambiente donde confluyen el arte, la comodidad y la estética.
Por otra parte, dos juegos enfrentados de puertas correderas de vidrio abren el área social hacia el patio y la terraza lateral. En sentido longitudinal, las puertas correderas de madera que se deslizan entre los muros se usan para comunicar la cocina con el comedor, y para integrar o separar la biblioteca, que a su vez se puede unir a la alcoba principal con su baño y vestier, dispuestos en un ala de unos 160 metros cuadrados.
Frente a la alcoba principal, una terraza se abre hacia los jardines y la vista, y por el costado opuesto, una escalera de un tramo comunica con la planta baja, con dos habitaciones separadas por un estar, y una cava de vinos con un cielorraso abovedado recubierto en mosaico de mármol texturizado que recuerda el color y la textura de los tapones de corcho.
La solidez y el sentido de permanencia de la construcción se confirman en la selección de los materiales, trabajados con maestría y atención al detalle. Los muros de ladrillo de formato alargado armonizan con la madera de guayacán de los pisos y con el cobre del buitrón de la chimenea, tonalidades que se complementan con el cuero que tapiza los muebles y la madera del piano.
Trazado con orden y sencillez, el espacio abre perspectivas interiores que permiten apreciar pinturas y esculturas de los principales artistas colombianos de la segunda mitad del siglo XX y de la actualidad. Las obras, como los monolitos de Hugo Zapata, que surgen de espejos de agua en la plazoleta de la casa grande, o un maíz de Édgar Negret, instalado a un lado de la vía que comunica las dos viviendas, sacan el arte al aire libre para ennoblecer el paisaje, compuesto por el panorama impresionante de la cordillera Central colombiana en el que, hacia el sur en los días despejados, destaca la cumbre nevada del volcán del Ruiz.











