Para Rogelio Salmona la arquitectura era “…un acontecimiento que forma espacios diferentes, lugares diversificados por la incidencia de la luz, el sonido del agua o la aparición de una nube. Espacios que recogen el agua de lluvia, los humedece cambiándoles el color. Colores que reaparecen con la salida del sol, creando otros colores y halos que se secan e irisan el espacio” (Rogelio Salmona, 1997).
El lirismo con que definía la arquitectura no era mera elocuencia, sino que estuvo implícito a lo largo de su obra. Su retórica, ciertamente, se negaba a plegarse a los aspectos formal y espacial de esta disciplina. De ahí que por más de cinco décadas sus proyectos, además de sus reflexiones, hayan servido en la formación de cientos –si no miles– de profesionales. Hoy su voz hace eco en el edificio más reciente de la Universidad de Caldas, el Centro Cultural Universitario, en Manizales, concebido en gran parte por María Elvira Madriñán, viuda y colega del maestro.
Acá le damos los mejores tips para que sus tapetes duren más de 10 años.

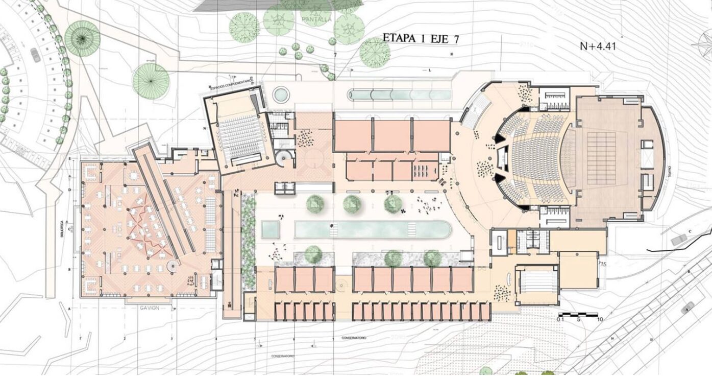
Con el propósito de enriquecer las actividades culturales enmarcadas tanto en la institución como en la ciudad y la región, en el año 2003, el entonces rector de la Universidad de Caldas convocó al arquitecto Rogelio Salmona para desarrollar un proyecto ambicioso: un edificio multiprograma cuya superficie incluiría numerosos espacios (biblioteca, galería de arte, museo, teatro, conservatorio y servicios generales) destinados no solo a la comunidad universitaria, sino a todos los ciudadanos.
No obstante, debido a la magnitud del edificio, el proyecto se hizo inviable en términos económicos; se detuvo por cerca de cuatro años, hasta que un nuevo rector decidió retomar la iniciativa bajo la condición de reducir el programa y, así, posibilitar su construcción. Para ese momento (2007), Salmona ya había enfermado, por lo que apenas consiguió dejar algunos esquemas que esbozaban sus ideas respecto al edificio.
Después de su muerte los directivos de la institución contactaron a María Elvira Madriñán, con quien el arquitecto trabajó a cuatro manos durante varios años, y quien de manera persistente ha conservado su herencia (el énfasis arquitectónico que orquesta los elementos representativos de su obra). Fue ella la que, sin abandonar las premisas del maestro, le insufló vida al proyecto, al mismo tiempo que materializó su propia visión.
Aquellas premisas que condicionaron la producción de Salmona también se ven reflejadas en la obra culminada. Sin ir más lejos, la visión de la arquitectura como un acto político –es decir, como el lugar de la manifestación de lo público–, así como la reivindicación de la historia y la tradición, son reafirmadas por Madriñán a través de diferentes operaciones, en las que prevalecen los espacios colectivos (o de encuentro) y el uso del ladrillo y el concreto a la vista.

Con respecto a este último punto, María Elvira resalta la importancia que tuvieron dichos materiales en el proyecto. Dado que en Manizales no existe una tradición vinculada a su uso –como sí la hay en otras ciudades del país–, buscó la manera de introducirla por medio de la educación. Con ello, los obreros que participaron en la construcción formaron parte de un proceso de aprendizaje en torno a la utilización de los mismos, característicos de Salmona; en este punto trabajaron con extremo rigor, dice la arquitecta. Y, con la apropiación de la técnica por parte de los maestros de obra, el edificio terminó convirtiéndose en una escuela donde convergen artes tradicionales y tecnologías modernas, a la vez que se funde el conocimiento con la práctica.
Otro de los aspectos relevantes del proyecto es su emplazamiento. En un lote con una pendiente bastante inclinada, optaron por realizar un diseño longitudinal en respuesta a las condiciones (o condicionantes) del terreno. Sobresale en ese sentido la apertura hacia el paisaje, y más específicamente hacia el cerro Sancancio: una serie de largos corredores permite contemplar este hito natural, acentuando su enorme altura y profusa vegetación. Aquí la arquitectura se transforma de manera sensible para exaltar la naturaleza.
La sumatoria de diferentes formas determina la espacialidad del lugar, al mismo tiempo que induce el movimiento en su interior. Por la manera como se disponen las rampas y circulaciones, atravesando distintas áreas, se entrevé la importancia del recorrido, el cual constituía un elemento compositivo fundamental en las propuestas de Salmona. Para el arquitecto, los recorridos –que aparentaban ser arbitrarios– debían estimular los sentidos, ser inquietantes, incluso desorientadores.
Por eso, en el nuevo Centro Cultural Universitario los ejes de circulación invitan a los visitantes a caminar el edificio de principio a fin, haciendo de este una experiencia individual que desborda los límites del espacio-tiempo. El proyecto para la Universidad de Caldas prolonga el discurso del maestro colombiano, el cual Madriñán ha sabido complementar con su perspectiva de la arquitectura. Más aún, gracias a su espíritu creativo el edificio reproduce aquella poiesis a la que Rogelio Salmona continuamente hacía referencia. Sin duda, María Elvira elaboró un discurso propio.



