Ubicada en un terreno estrecho en el distrito de Villeray de Montreal, la nueva casa firmada por ISSADESIGN ofrece 2 unidades de 1845 pies cuadrados. Diseñada para integrarse en el paisaje urbano, la casa se distribuye en cuatro plantas a escala de barrio, con una combinación de materiales ricos y contrastantes que predominan en la fachada del edificio.

Concepto y estrategias
Tan pronto como se entra, la escalera recibe a los invitados. Este elemento vertical actúa como pieza central de la casa y como punto de referencia al conectar las distintas plantas. “ La idea detrás de este elemento arquitectónico era hacer un leve guiño al árbol en el bosque. Inspirada en el tronco del árbol, la escalera está enmarcada con listones y esta en toda su altura. En lo más alto, al final del paseo marítimo, un tragaluz ilumina el espacio y ofrece interesantes juegos de luces y sombras «.

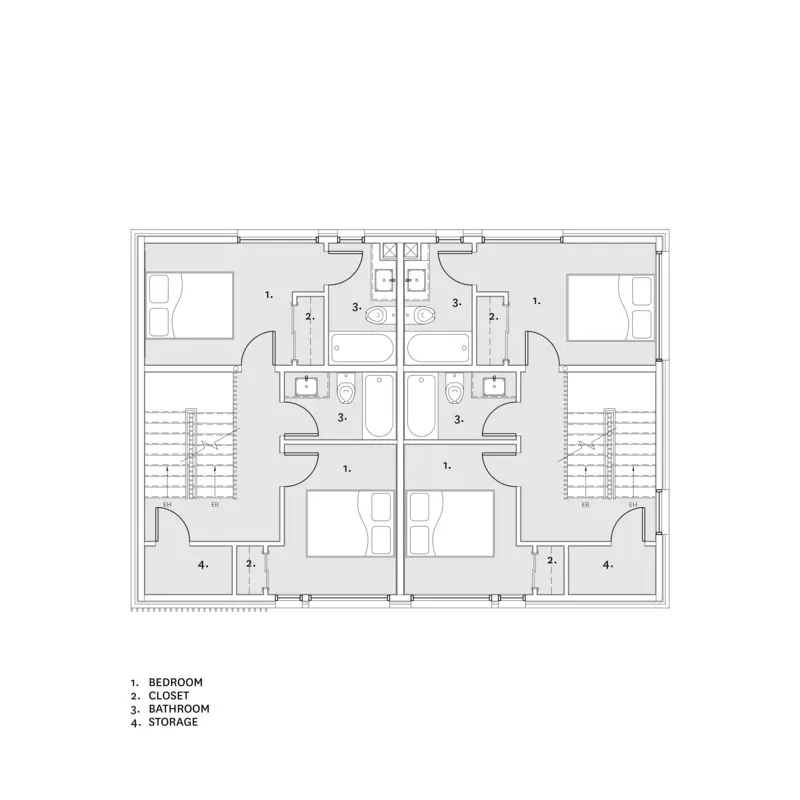
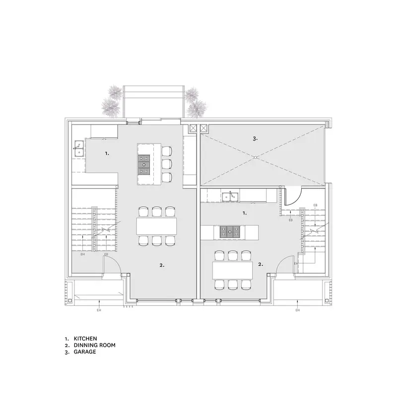
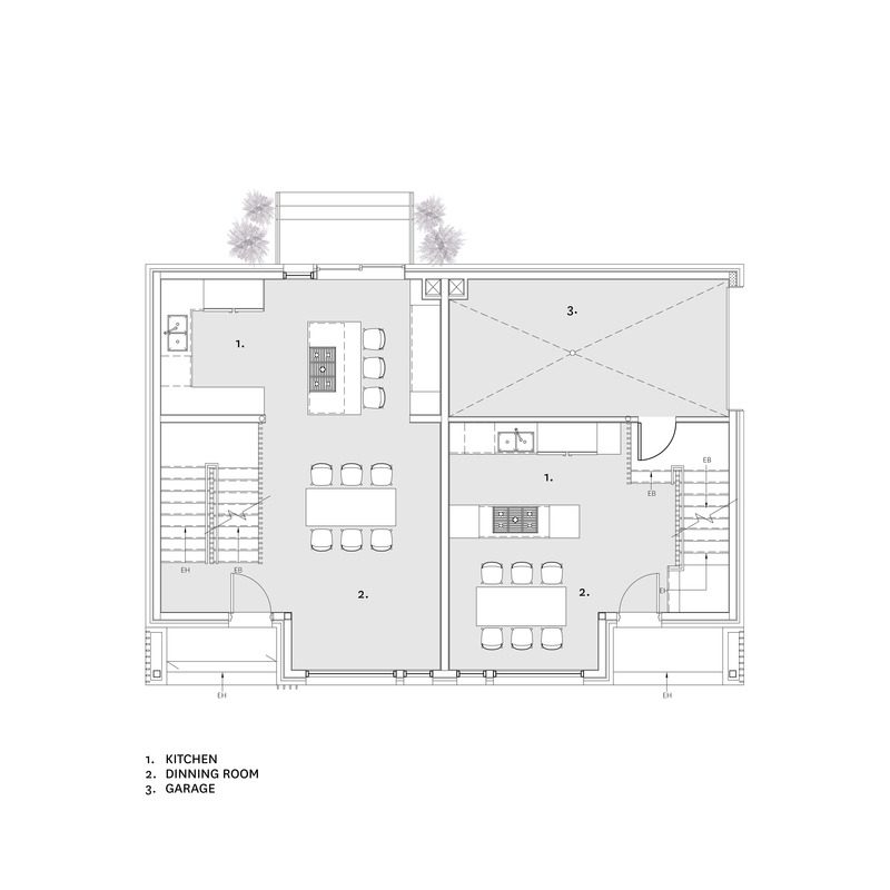
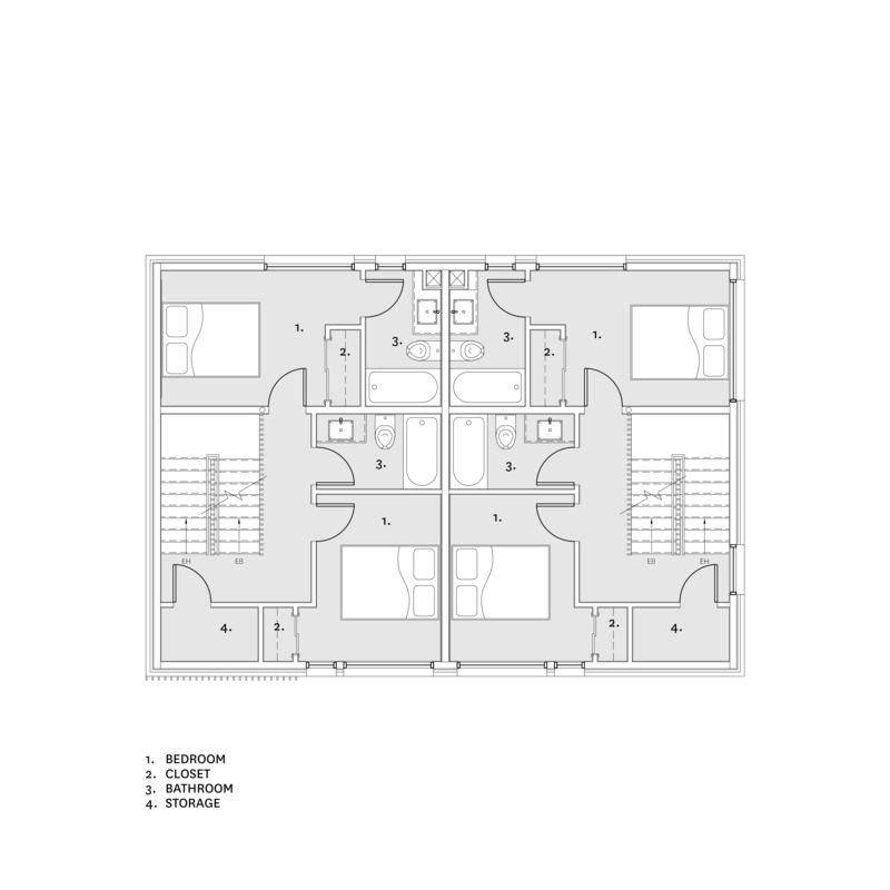
Las áreas de vida familiar ocupan el primer piso. Por su parte, el sótano ofrece una sala de estar así como un dormitorio adicional y un funcional lavadero. El ala de los niños está ubicada en el segundo nivel, mientras que el nivel superior está dedicado a la suite principal, donde se tiene acceso a una terraza en la azotea, lo que garantiza la relajación privada al aire libre. Un baño acristalado integrado en el dormitorio también es un punto focal.

Materialidad
La materialidad propuesta para esta copropiedad pretende ser contrastante y elegante. El objetivo era jugar con el blanco y negro sabiendo que estas tonalidades son atemporales y dan carácter a cualquier lugar cuando se combinan. El suelo de madera en espiga aporta una dosis de calidez y elegancia a esta casa que espera recibir a sus futuros habitantes.


Lea aquí también: cómo decorar una oficina pequeña y convertirla en un espacio multifuncional.
