Durante los últimos 15 años la firma bogotana Yemail Arquitectura, dirigida por el arquitecto Antonio Yemail, ha trabajado en proyectos de distintas escalas y usos. Una parte importante de esta actividad la ha enfocado en el diseño de espacios laborales, donde se desdibuja el carácter rígido que suelen tener las superficies de oficinas, gracias a una experimentación espacial y material que produce ambientes con un sentido lúdico y amable.

Este interés por una arquitectura corporativa diversa se volvió especialmente relevante cuando una compañía de ingeniería, dedicada a la gestión y construcción de vías en el país, le encargó el diseño de una sede para que sus empleados regresen al trabajo luego del aislamiento obligatorio de 2020. Así, el proyecto giró en torno a entender de qué manera se debería retornar a estos lugares, después de haber vivido varios meses de teletrabajo y cómo promover el encuentro social en oficinas saludables.
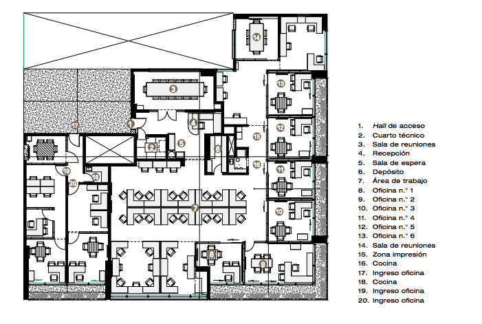
El proyecto debía transformar y unificar tres locales, con un área conjunta de 520 metros cuadrados dentro de un edificio, para albergar cinco gerencias, una oficina de apoyo, una sala de reuniones, una recepción, zona de servicio y una serie de escritorios en planta abierta. Además, el mobiliario existente tenía que ser reutilizado. Mediante la demolición y construcción selectiva de muros, los arquitectos liberaron el espacio de tal forma que eliminaron los obstáculos visuales hacia las ventanas para que la luz natural inunde la totalidad del área. Esto permitió un esquema de distribución en el que llevaron las gerencias al perímetro y ubicaron los escritorios integrados en el centro, donde cada dependencia tiene acceso directo a una ventana.

El cerramiento interior de las gerencias lo construyeron en vidrio acústico translúcido para no obstruir el paso de la luz, mientras que organizaron los puestos centrales a manera de isla para facilitar la libre circulación y el intercambio entre compañeros de trabajo. La transparencia lograda entre las áreas cerradas y abiertas propicia un ambiente laboral que desestimula el aislamiento y fomenta la cooperación. A nivel espacial, dos planos –el piso y el cielorraso– definen esta arquitectura colaborativa. El primero está compuesto por un tapete de alto tráfico que remite a un ámbito más doméstico que institucional y que contribuye a un mejor comportamiento acústico. En segunda instancia, pintaron de verde la placa de concreto, junto con los muros, para homogeneizar todas las áreas. Sobre los puestos de trabajo descolgaron un segundo cielo reticulado de madera al cual integraron un sistema de iluminación especial. Este objeto aparece como una pequeña arquitectura flotante que modifica la escala del espacio.

La zona de servicios la agruparon dentro de un volumen revestido de madera que, al abrirse, revela nichos pintados de amarillo intenso. La arquigrafía del proyecto, también diseñada por Yemail, resuelve la señalización de las diferentes dependencias, pero al mismo tiempo crea un mural que se comporta como un paisaje de datos para consulta de la empresa. Yemail Arquitectura propone aquí un regreso al mundo laboral a través de la democratización del acceso a la luz solar con una arquitectura transparente que se construye una dentro de la otra, y que al hacerlo suma lo existente con lo nuevo en favor de un lugar para el reencuentro. ■

Lea más en nuestra sección de arquitectura.

