Exclusividad y contemporaneidad son dos características que describen esta obra, una propuesta residencial que entiende el lujo desde la amplitud. Este proyecto, compuesto por cuatro viviendas implantadas en predios de 10.000 metros cuadrados, está concebido como un refugio en diálogo con el confort inteligente y el entorno.

Reserva de Tobaca nació al reconocer una gran oportunidad gracias a su ubicación privilegiada. Como explica Juan Carlos Pedraza Arias, inversionista e ingeniero civil, “la idea surgió al identificar la creciente demanda de refugios exclusivos en la naturaleza cerca de Bogotá. Ideal para quienes buscan desconectarse y disfrutar de espacios amplios, con caballerizas exclusivas y tecnología smart home”.
Desde la mirada arquitectónica, “Reserva de Tobaca es una apuesta residencial de alto nivel dentro de un desarrollo de baja densidad”, dice el arquitecto proyectista Iván Ávila García, responsable del diseño de la obra. De este modo, la amplitud del territorio es la base conceptual del proyecto, lo que permite que cada vivienda respire y se garantice libertad de uso del suelo, una privacidad difícil de encontrar en desarrollos tradicionales.

Su arquitectura es una apuesta por la sobriedad y la atemporalidad. “Se concibe desde un lenguaje minimalista y contemporáneo, con una expresión noble en su materialidad y un enfoque introspectivo en la experiencia espacial”, explica Ávila.
El diseño de las viviendas
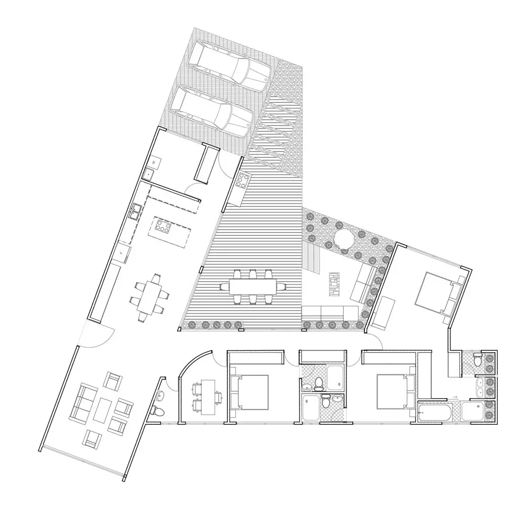
La distribución espacial privilegia una relación fluida entre interior y exterior, en la que grandes ventanales, terrazas y áreas abiertas integran la luz natural y las visuales panorámicas como parte esencial de la experiencia cotidiana. Cada vivienda dispone de una amplia zona social que articula sala, comedor y cocina abierta, además de estudio independiente, BBQ y sala exterior para el encuentro y el disfrute. El programa contempla tres habitaciones con baño privado, baños sociales estratégicamente distribuidos y parqueadero con capacidad para dos vehículos.

En materia tecnológica, el proyecto integra un sistema de domótica que permite el control inteligente de iluminación, climatización y ambientación, e incorpora también acceso mediante reconocimiento facial. Así mismo, cuenta con un sistema inteligente propio de cada vivienda, lo que garantiza autonomía operativa y continuidad en el funcionamiento.
Por otro lado, la selección de materiales refuerza una estética elegante y atemporal: “La madera y la piedra definen la visual del proyecto, aportan calidez y conexión”, confirma Pedraza. Reserva de Tobaca también es sostenible, ya que integra estrategias ambientales concretas, como ventilación cruzada, empleo de energía solar y aprovechamiento de iluminación natural.

Uno de los diferenciales más potentes del proyecto es la posibilidad de personalización, ya que cada vivienda se puede ampliar y adaptar según las necesidades del propietario. La escala de los lotes permite incorporar caballerizas privadas, canchas deportivas, zonas recreativas o espacios exteriores diseñados a medida.

Para quienes buscan una inversión en el altiplano boyacense, Reserva de Tobaca es una oportunidad singular, una propuesta arquitectónica que entiende que el lujo hoy es habitar disfrutando a plenitud los espacios.
Para más información: (57) 312 325 2024. Instagram: @aurahaus.design.
